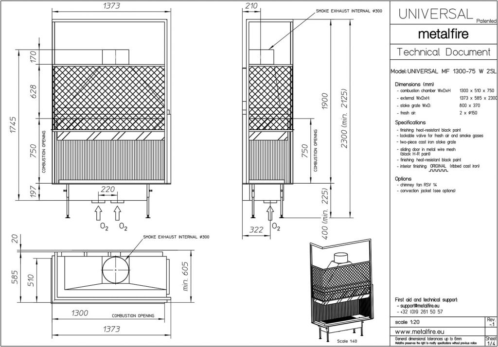
METALFIRE UNIVERSAL BOIS MF 1300-75 W 2S L/R
Intérieur finition "Original" (lamelles verticales striées en fonte 20 mm)
pare étincelles escamotable de serie
plaque en verre fixe de serie
Type | Foyers à Bois |
Fabricant | Metalfire |
Ø évacuation des fumées | 300mm |
Ø de la prise d'air | 2X150mm |
Dimensions HxLxP | 190 x 130 x 58cm |
Largeur de vitre | 130cm |
Taille de bûches | 100cm |
Vitrage | 2 faces en angle |
Options | Cadres de finition Niche acier en prolongement du foyer grill BBQ plus support en inox finition design avaloir déporté |
Metalfire
L’amour des détails purs, la simplicité des matériaux minimalistes et le langage épuré des formes permettent à Metalfire de créer des produits de design intégrés à une vaste gamme standard et de proposer de nombreuses possibilités d'options et de travail sur mesure.
Gaz et bois, découvrez les collections Metalfire appréciées des architectes les plus renommés pour des créations originales et contemporaines.
Origine : Belgique


Un projet ? Une question ? Un devis concernant ce produit ?
N'hésitez pas !
Faites votre demande de devis ou de renseignement directement ici...
Notre équipe vous recontactera très rapidement et vous aidera à évaluer votre projet au plus près de votre budget