M Design Luna Diamond 1150V
La Cheminée Bois Luna Diamond 1150 V est le plus grand foyer bois vertical proposé par M-Design. Cette gamme de foyers bois : Luna Diamond est dotée d’une vitre et d’un pare feux escamotables et d’un intérieur proposé au choix : soit en acier, soit en fonte. Ces cheminées verticales reprennent la forme traditionnelle des anciens foyers.
Deux versions sont disponibles pour cette cheminée :
- LUNA DIAMOND 1150V version manuelle
- LUNA DIAMOND Plus 1150V version motorisée
La série des cheminées Luna Diamond Plus est équipée d'un module de commandes automatique appelé "SWIPE". Cette application permet d’affiner le fonctionnement de votre cheminée bois Luna Diamond Plus. Grâce à ce module, vous pouvez informer votre appareil de la qualité du bois utilisé, piloter l’ouverture de la vitre et du pare feu, régler le ventilateur et le tirage et bien plus encore… Tout cela en quelques touches sur le boitier de commandes ou bien directement via votre tablette ou smartphone.
Ces cheminées bois ont une porte escamotable automatique, une combustion optimale, un réglage précis de la combustion, une deuxième porte décorative automatique : pare-feu, un cadre solide de 8 mm et des parois en acier ou en fonte.
Le SWIPE est conçu de manière à tirer le maximum de chaque bûche. Le processus de combustion est tellement efficace que le rendement atteint des sommets avec plus de 80%. On utilise donc moins de bois, pour un résultat similaire, avec à la clé beaucoup moins d’émissions. Le réglage précis du feu rend cette cheminée bois unique. L’allumage est particulièrement rapide et l’entretien relativement limité grâce au système autonettoyant associé à une combustion optimale.
Type | Foyers à Bois |
Fabricant | Mdesign |
Energie | Bois |
Type | De 9kW à 18kW |
Rendement | 78% |
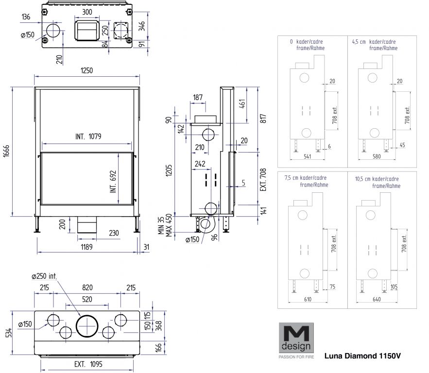
Ø évacuation des fumées | 250mm |
Ø de la prise d'air | 150mm |
Dimensions HxLxP | 170 x 125 x 53cm |
Largeur de vitre | 107cm |
Taille de bûches | 50cm |
Vitrage | 1 face |
Garantie constructeur | 8 ans |
Options | Intérieur fonte Cadres de finition Swipe (contrôle par smartphone ou tablette,contrôle de l'éclairage,ouverture manuelle et automatique du pare feu et porte escamotable, réglage silencieux du ventilateur,réglage de température le swipe fonctionne comme thermostat) Ventilateur Raccordement latérale de l'air de combustion |
Réglementation thermique | RT2012 |
Mdesign
Bois ou Gaz, M Design propose une superbe collection de produits avec les technologies les plus sophistiquées.
Mdesign produit des poêles et foyers qui sont synonymes de fiabilité, d'efficacité, d'élégance et de confort d'utilisation.
Ses appareils disposent d’un système de combustion très performant et d’un système optimal d’auto nettoyage de la vitre. Ses cheminées et foyers se caractérisent par ailleurs par un confort d’utilisation exceptionnel et un design très séduisant.
Origine : Belgique


Un projet ? Une question ? Un devis concernant ce produit ?