M Design Rustica XL
Les foyers Rustica sont conçus pour s’intégrer parfaitement dans une ancienne cheminée avec habillage en pierre. Trois dimensions de forme classiques verticales sont proposées, M médium / L large / XL extra-large. Ces cheminées gaz peuvent être équipées d’un intérieur en acier, cependant l’idéal est de concevoir un fond en briquettes assorties à la couleur de l’habillage en pierre pour un rendu plus harmonieux.
Ces foyers gaz sont dotés de quatre brûleurs dont trois (en fonction de la taille du foyer) s’intégrant parfaitement dans les bûches en céramique. Les flammes sortent littéralement des bûches, disposées en Tipi. Avec une belle vision du feu, un lit de charbon de bois, ainsi que des LED, intégrées sous le foyer, associées à des cheveux d’anges, l’effet de braises est total. L’illusion d’un véritable feu de bois bûches est parfaite.
Deux systèmes de réduction de la consommation de gaz, développés par M-Design, sont intégrés à ces cheminées gaz. L’Eco-Wave permettant de varier la puissance des brûleurs et ainsi la hauteur des flammes. Mais aussi l’Eco-Switch offrant la possibilité de couper un ou deux brûleurs, tout en profitant de belles flammes. L’économie ressentie peut aller jusqu’à 40%, sans rompre l’ambiance dans le foyer.
En option, vous pouvez l’équiper d’un boîtier de commande « Gateway » permettant non pas de gérer votre foyer avec sa télécommande, mais avec votre Smartphone ou Tablette.
Application compatible avec un système Domotique.
Type | Foyers à Gaz |
Fabricant | Mdesign |
Energie | Gaz Naturel & Propane |
Type | De 5kW à 16kW |
Rendement | 76% |
Ø évacuation des fumées | 130mm |
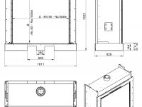
Dimensions HxLxP | 152 x 161 x 62cm |
Largeur de vitre | 136cm |
Vitrage | 1 face |
Garantie constructeur | 8 ans |
Options | Intérieur acier Cadre acier Connexion Smartphone et Tablette Led dans le foyer(imitation braises) Cheveux d'ange (imitation braises) |
Réglementation thermique | RT2012 |
Mdesign
Bois ou Gaz, M Design propose une superbe collection de produits avec les technologies les plus sophistiquées.
Mdesign produit des poêles et foyers qui sont synonymes de fiabilité, d'efficacité, d'élégance et de confort d'utilisation.
Ses appareils disposent d’un système de combustion très performant et d’un système optimal d’auto nettoyage de la vitre. Ses cheminées et foyers se caractérisent par ailleurs par un confort d’utilisation exceptionnel et un design très séduisant.
Origine : Belgique


Un projet ? Une question ? Un devis concernant ce produit ?