STUV 30-IN
Subtilement intégré au cœur de votre maison avec une sobriété de l’encastrement, et une subtilité des courbes.
Stûv 30-in offre trois modes d'utilisation grâce au système 3 portes :
- La porte vitrée offre une large vue sur les flammes et un excellent rendement.
- La porte pleine réduit le rayonnement et évite que la vitre ne se salisse, même à feu réduit.
- Le mode feu ouvert vous permet de profiter pleinement du crépitement du feu, de l’odeur du bois… et même d’un barbecue !
Ce foyer encastré vous permet de canaliser l'air chaud avec ou sans ventilateur.
Type | Poêles à Bois |
Fabricant | STUV |
Energie | Bois |
Type | De 5kW à 12kW |
Rendement | 81% |
Ø évacuation des fumées | 180mm |
Ø de la prise d'air | 100mm |
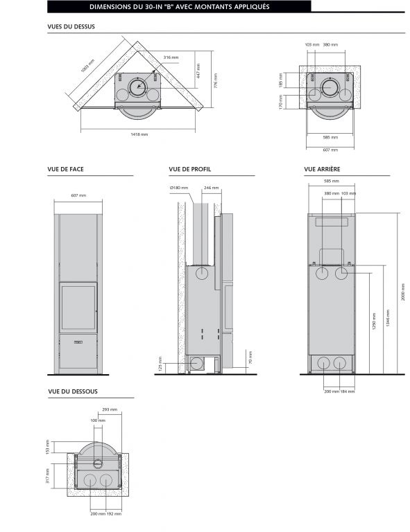
Dimensions HxLxP | 200 x 60 x 45cm |
Taille de bûches | 33cm |
Habillage | Acier |
Vitrage | 1 face |
Garantie constructeur | 5 ans |
Réglementation thermique | RT2012 |
STUV
Stûv conçoit et fabrique des poêles à bois, des poêles à pellets, des inserts au bois et des inserts au gaz, visant à magnifier le feu dans sa dimension fonctionnelle, émotionnelle et architecturale.
Stûv est un fabricant belge de produits techniques et esthétiques dont les lignes pures s'adaptent à tous les intérieurs.
La forme découle de la fonction, du plaisir d'utilisation.
L'innovation est un des cheval de bataille de Stuv, avec le dépôt de plusiuers brevets, notamment celui du feu multi-fonction 3 en 1 (Stuv 30) offrant une polyvalence exceptionnelle.
Les produits Stûv sont assemblés dans les unités de production en Belgique et soumis à des contrôles de qualité systématiques.
Origine : Belgique


Un projet ? Une question ? Un devis concernant ce produit ?