STUV 30-UP
Poêle à bois suspendu idéal pour les habitations compactes ou maisons basse énergie, doté du système trois portes.
Le Stûv 30-up est équipé d'une colonne de convection pour récupérer la chaleur dégagée par la buse d'air chaud.
Trois portes tournantes qui suivent vos envies :
Changer de mode d'utilisation ne prend que quelques secondes : il suffit de faire pivoter le tambour de votre Stûv 30 jusqu’à ce que la porte souhaitée se trouve devant l’ouverture du poêle.
- La porte vitrée offre une magnifique vue sur les flammes, garantissant sécurité, écologie et économies, grâce à un excellent rendement.
- La porte pleine ralentit le feu et optimise la performance.
- Le mode feu ouvert vous permet de profiter pleinement des crépitements des flammes, de l’odeur du bois… et même d’un barbecue !
Type | Poêles à Bois |
Fabricant | STUV |
Energie | Bois |
Type | De 5kW à 9kW |
Rendement | 84% |
Ø évacuation des fumées | 180mm |
Ø de la prise d'air | 63mm |
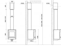
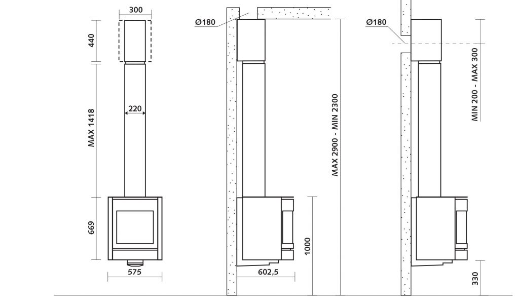
Dimensions HxLxP | 67 x 57 x 56cm |
Taille de bûches | 33cm |
Habillage | Acier |
Vitrage | 1 face |
Garantie constructeur | 5 ans |
Réglementation thermique | RT2012 |
STUV
Stûv conçoit et fabrique des poêles à bois, des poêles à pellets, des inserts au bois et des inserts au gaz, visant à magnifier le feu dans sa dimension fonctionnelle, émotionnelle et architecturale.
Stûv est un fabricant belge de produits techniques et esthétiques dont les lignes pures s'adaptent à tous les intérieurs.
La forme découle de la fonction, du plaisir d'utilisation.
L'innovation est un des cheval de bataille de Stuv, avec le dépôt de plusiuers brevets, notamment celui du feu multi-fonction 3 en 1 (Stuv 30) offrant une polyvalence exceptionnelle.
Les produits Stûv sont assemblés dans les unités de production en Belgique et soumis à des contrôles de qualité systématiques.
Origine : Belgique


Un projet ? Une question ? Un devis concernant ce produit ?