SPARTHERM Senso L
Senso L est un grand et imposant foyer à bois avec un avant incurvé qui fait ressortir le meilleur de sa fenêtre évocatrice.
Il est livrable avec trois finitions principales : pierre à savon, grès et acier inoxydable, avec des finitions décoratives supplémentaires en Nero, Titan et Pearl.
Avec une production considérable de chaleur de plus de 9kW et une efficacité énergétique de 80 %, c’est le choix du style et de la technique.
Type | Poêles à Bois |
Fabricant | Spartherm |
Energie | Bois |
Type | De 4.5kW à 9.1kW |
Rendement | 80% |
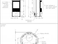
Ø évacuation des fumées | 150mm |
Ø de la prise d'air | 100mm |
Dimensions HxLxP | 131 x 56 x 48cm |
Habillage | Acier |
Vitrage | 1 face |
Garantie constructeur | 5 ans |
Options | Accumulateur de chaleur Air de combustion séparé Accumulateur de chaleur |
Réglementation thermique | RT2012 |
Spartherm
Design, sur-mesure et haute qualité ont permis au groupe Spartherm de devenir une référence jusqu’à devenir le leader allemand des foyers vitrés et des poêles à bois.
En étroite collaboration avec des concepteurs, architectes d’intérieurs et designers, Spartherm joue la carte de l’innovation, notamment avec sa gamme Premium.
La grande force de Spartherm réside aussi dans sa capacité à faire du SUR-MESURE pour répondre à toutes les demandes en foyers ou en inserts.
Origine : Allemagne


Un projet ? Une question ? Un devis concernant ce produit ?